Foram encontradas 30 questões.
Um Shopping na cidade de Itaúna entrevistou k candidatos para preencher as vagas de emprego e rejeitou um número de candidatos igual a 8 vezes o número daqueles aceitos. Um possível valor de k é:
Provas
Questão presente nas seguintes provas
Que tipo de sistema de distribuição está sendo representado no esquema a seguir?

Provas
Questão presente nas seguintes provas
O concreto armado é um material muito usado em construções devido a sua possibilidade de ser moldado de múltiplas formas e de resistir a esforços, a saber, a sua armação metálica resiste a esforços de:
Provas
Questão presente nas seguintes provas
Num dia lindo e ensolarado o coelho saiu de sua toca com o notebook e pôs-se a trabalhar, bem concentrado. Pouco depois, passou por ali a raposa e viu aquele suculento coelhinho, tão distraído, que chegou a salivar. No entanto, ela ficou intrigada com a atividade do coelho e aproximou-se curiosa:
- Coelhinho, o que você está fazendo aí tão concentrado?
- Estou redigindo a minha tese de doutorado, disse o coelho sem tirar os olhos do computador.
- Humm... E qual é o tema da sua tese?
- Ah, é uma teoria provando que os coelhos são os verdadeiros predadores naturais das raposas.
A raposa ficou indignada:
- Ora! Isso é ridículo! Nós, as raposas, é que somos os predadores dos coelhos!
- Absolutamente! Venha comigo à minha toca que eu mostro a minha prova experimental.
O coelho e a raposa entram na toca. Poucos instantes depois ouvem-se uns ruídos indecifráveis e alguns grunhidos de dor e depois o silêncio. Em seguida o coelho volta sozinho e mais uma vez retoma os trabalhos no notebook, como se nada tivesse acontecido.
Meia hora depois passa um lobo. Ao ver o apetitoso coelhinho tão distraído, agradece mentalmente à cadeia alimentar por estar com o seu jantar garantido. No entanto, o lobo também acha muito curioso um coelho trabalhando naquela concentração toda. O lobo resolve saber do que se trata, antes de devorar o coelhinho:
- Olá, meu jovem coelho. O que o faz trabalhar tão arduamente?
- Minha tese de doutorado, Sr. Lobo. É uma teoria que venho desenvolvendo há algum tempo e que prova que nós, coelhos, somos os piores predadores naturais dos lobos.
O lobo não se conteve e caiu na gargalhada com a petulância do coelho:
- Ah, ah, ah, ah!!! Coelhinho! Apetitoso coelhinho! Isto é um despropósito. Nós, os lobos, é que somos os genuínos predadores naturais dos coelhos. Aliás, chega de conversa...
- Desculpe-me, mas se você quiser, eu posso apresentar a prova da minha tese. Você gostaria de me acompanhar à minha toca?
O lobo não consegue acreditar na sua sorte. Ambos desaparecem toca adentro. Alguns instantes depois, ouvem-se uivos desesperados, ruídos de mastigação e silêncio. Mais uma vez o coelho retorna sozinho, impassível, e volta a dedilhar o teclado de seu laptop, como se nada tivesse acontecido...
Dentro da toca do coelho, vê-se uma enorme pilha de ossos ensanguentados e peles de diversas exraposas e, ao lado destas, outra pilha ainda maior de ossos e restos mortais daquilo que um dia foram lobos. Ao centro das duas pilhas de ossos, um enorme leão, satisfeito, bem alimentado e sonolento, a palitar os dentes.
MORAL DA HISTÓRIA:
Não importa quão absurdo é o tema de sua tese.
Não importa se você não tem o mínimo fundamento científico.
Não importa se os seus experimentos nunca chegarem a provar sua teoria.
Não importa nem mesmo se suas ideias vão contra o mais óbvio dos conceitos lógicos.
O que importa é quem é o seu orientador.
Em: “Poucos instantes depois ouvem-se uns ruídos indecifráveis e alguns grunhidos de dor e depois o silêncio”, a respeito da forma verbal ouvem-se é correto afirmar que ela:
Provas
Questão presente nas seguintes provas
Num dia lindo e ensolarado o coelho saiu de sua toca com o notebook e pôs-se a trabalhar, bem concentrado. Pouco depois, passou por ali a raposa e viu aquele suculento coelhinho, tão distraído, que chegou a salivar. No entanto, ela ficou intrigada com a atividade do coelho e aproximou-se curiosa:
- Coelhinho, o que você está fazendo aí tão concentrado?
- Estou redigindo a minha tese de doutorado, disse o coelho sem tirar os olhos do computador.
- Humm... E qual é o tema da sua tese?
- Ah, é uma teoria provando que os coelhos são os verdadeiros predadores naturais das raposas.
A raposa ficou indignada:
- Ora! Isso é ridículo! Nós, as raposas, é que somos os predadores dos coelhos!
- Absolutamente! Venha comigo à minha toca que eu mostro a minha prova experimental.
O coelho e a raposa entram na toca. Poucos instantes depois ouvem-se uns ruídos indecifráveis e alguns grunhidos de dor e depois o silêncio. Em seguida o coelho volta sozinho e mais uma vez retoma os trabalhos no notebook, como se nada tivesse acontecido.
Meia hora depois passa um lobo. Ao ver o apetitoso coelhinho tão distraído, agradece mentalmente à cadeia alimentar por estar com o seu jantar garantido. No entanto, o lobo também acha muito curioso um coelho trabalhando naquela concentração toda. O lobo resolve saber do que se trata, antes de devorar o coelhinho:
- Olá, meu jovem coelho. O que o faz trabalhar tão arduamente?
- Minha tese de doutorado, Sr. Lobo. É uma teoria que venho desenvolvendo há algum tempo e que prova que nós, coelhos, somos os piores predadores naturais dos lobos.
O lobo não se conteve e caiu na gargalhada com a petulância do coelho:
- Ah, ah, ah, ah!!! Coelhinho! Apetitoso coelhinho! Isto é um despropósito. Nós, os lobos, é que somos os genuínos predadores naturais dos coelhos. Aliás, chega de conversa...
- Desculpe-me, mas se você quiser, eu posso apresentar a prova da minha tese. Você gostaria de me acompanhar à minha toca?
O lobo não consegue acreditar na sua sorte. Ambos desaparecem toca adentro. Alguns instantes depois, ouvem-se uivos desesperados, ruídos de mastigação e silêncio. Mais uma vez o coelho retorna sozinho, impassível, e volta a dedilhar o teclado de seu laptop, como se nada tivesse acontecido...
Dentro da toca do coelho, vê-se uma enorme pilha de ossos ensanguentados e peles de diversas exraposas e, ao lado destas, outra pilha ainda maior de ossos e restos mortais daquilo que um dia foram lobos. Ao centro das duas pilhas de ossos, um enorme leão, satisfeito, bem alimentado e sonolento, a palitar os dentes.
MORAL DA HISTÓRIA:
Não importa quão absurdo é o tema de sua tese.
Não importa se você não tem o mínimo fundamento científico.
Não importa se os seus experimentos nunca chegarem a provar sua teoria.
Não importa nem mesmo se suas ideias vão contra o mais óbvio dos conceitos lógicos.
O que importa é quem é o seu orientador.
Quanto a uso do acento grave em: “... agradece mentalmente à cadeia alimentar por estar com o seu jantar garantido...”,
Provas
Questão presente nas seguintes provas
1715808
Ano: 2016
Disciplina: Matemática Financeira
Banca: INAZ do Pará
Orgão: Pref. Itaúna-MG
Disciplina: Matemática Financeira
Banca: INAZ do Pará
Orgão: Pref. Itaúna-MG
Provas:
O tempo de determinado capital, colocado a taxa de 10% ao ano, rende juros iguais aos !$ \large 3 \over4 !$ do capital inicial é?
Provas
Questão presente nas seguintes provas
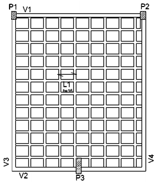
Que o tipo de laje está representada no projeto abaixo?

Provas
Questão presente nas seguintes provas
Uma piscina deve ser construída de modo a suportar 20!$ m !$³ de água. O comprimento tem valor !$ b = x+2 !$, a altura !$ h = x-2 !$ e a largura !$ L = 4m !$. O valor de x,assim como o valor da altura, corresponde a seguinte alternativa:
Provas
Questão presente nas seguintes provas
Num dia lindo e ensolarado o coelho saiu de sua toca com o notebook e pôs-se a trabalhar, bem concentrado. Pouco depois, passou por ali a raposa e viu aquele suculento coelhinho, tão distraído, que chegou a salivar. No entanto, ela ficou intrigada com a atividade do coelho e aproximou-se curiosa:
- Coelhinho, o que você está fazendo aí tão concentrado?
- Estou redigindo a minha tese de doutorado, disse o coelho sem tirar os olhos do computador.
- Humm... E qual é o tema da sua tese?
- Ah, é uma teoria provando que os coelhos são os verdadeiros predadores naturais das raposas.
A raposa ficou indignada:
- Ora! Isso é ridículo! Nós, as raposas, é que somos os predadores dos coelhos!
- Absolutamente! Venha comigo à minha toca que eu mostro a minha prova experimental.
O coelho e a raposa entram na toca. Poucos instantes depois ouvem-se uns ruídos indecifráveis e alguns grunhidos de dor e depois o silêncio. Em seguida o coelho volta sozinho e mais uma vez retoma os trabalhos no notebook, como se nada tivesse acontecido.
Meia hora depois passa um lobo. Ao ver o apetitoso coelhinho tão distraído, agradece mentalmente à cadeia alimentar por estar com o seu jantar garantido. No entanto, o lobo também acha muito curioso um coelho trabalhando naquela concentração toda. O lobo resolve saber do que se trata, antes de devorar o coelhinho:
- Olá, meu jovem coelho. O que o faz trabalhar tão arduamente?
- Minha tese de doutorado, Sr. Lobo. É uma teoria que venho desenvolvendo há algum tempo e que prova que nós, coelhos, somos os piores predadores naturais dos lobos.
O lobo não se conteve e caiu na gargalhada com a petulância do coelho:
- Ah, ah, ah, ah!!! Coelhinho! Apetitoso coelhinho! Isto é um despropósito. Nós, os lobos, é que somos os genuínos predadores naturais dos coelhos. Aliás, chega de conversa...
- Desculpe-me, mas se você quiser, eu posso apresentar a prova da minha tese. Você gostaria de me acompanhar à minha toca?
O lobo não consegue acreditar na sua sorte. Ambos desaparecem toca adentro. Alguns instantes depois, ouvem-se uivos desesperados, ruídos de mastigação e silêncio. Mais uma vez o coelho retorna sozinho, impassível, e volta a dedilhar o teclado de seu laptop, como se nada tivesse acontecido...
Dentro da toca do coelho, vê-se uma enorme pilha de ossos ensanguentados e peles de diversas exraposas e, ao lado destas, outra pilha ainda maior de ossos e restos mortais daquilo que um dia foram lobos. Ao centro das duas pilhas de ossos, um enorme leão, satisfeito, bem alimentado e sonolento, a palitar os dentes.
MORAL DA HISTÓRIA:
Não importa quão absurdo é o tema de sua tese.
Não importa se você não tem o mínimo fundamento científico.
Não importa se os seus experimentos nunca chegarem a provar sua teoria.
Não importa nem mesmo se suas ideias vão contra o mais óbvio dos conceitos lógicos.
O que importa é quem é o seu orientador.
A respeito da passagem: “Mais uma vez o coelho retorna sozinho, impassível, e volta a dedilhar...”, a palavra impassível poderia ser substituída sem alterar o sentido original do texto por:
Provas
Questão presente nas seguintes provas
Num dia lindo e ensolarado o coelho saiu de sua toca com o notebook e pôs-se a trabalhar, bem concentrado. Pouco depois, passou por ali a raposa e viu aquele suculento coelhinho, tão distraído, que chegou a salivar. No entanto, ela ficou intrigada com a atividade do coelho e aproximou-se curiosa:
- Coelhinho, o que você está fazendo aí tão concentrado?
- Estou redigindo a minha tese de doutorado, disse o coelho sem tirar os olhos do computador.
- Humm... E qual é o tema da sua tese?
- Ah, é uma teoria provando que os coelhos são os verdadeiros predadores naturais das raposas.
A raposa ficou indignada:
- Ora! Isso é ridículo! Nós, as raposas, é que somos os predadores dos coelhos!
- Absolutamente! Venha comigo à minha toca que eu mostro a minha prova experimental.
O coelho e a raposa entram na toca. Poucos instantes depois ouvem-se uns ruídos indecifráveis e alguns grunhidos de dor e depois o silêncio. Em seguida o coelho volta sozinho e mais uma vez retoma os trabalhos no notebook, como se nada tivesse acontecido.
Meia hora depois passa um lobo. Ao ver o apetitoso coelhinho tão distraído, agradece mentalmente à cadeia alimentar por estar com o seu jantar garantido. No entanto, o lobo também acha muito curioso um coelho trabalhando naquela concentração toda. O lobo resolve saber do que se trata, antes de devorar o coelhinho:
- Olá, meu jovem coelho. O que o faz trabalhar tão arduamente?
- Minha tese de doutorado, Sr. Lobo. É uma teoria que venho desenvolvendo há algum tempo e que prova que nós, coelhos, somos os piores predadores naturais dos lobos.
O lobo não se conteve e caiu na gargalhada com a petulância do coelho:
- Ah, ah, ah, ah!!! Coelhinho! Apetitoso coelhinho! Isto é um despropósito. Nós, os lobos, é que somos os genuínos predadores naturais dos coelhos. Aliás, chega de conversa...
- Desculpe-me, mas se você quiser, eu posso apresentar a prova da minha tese. Você gostaria de me acompanhar à minha toca?
O lobo não consegue acreditar na sua sorte. Ambos desaparecem toca adentro. Alguns instantes depois, ouvem-se uivos desesperados, ruídos de mastigação e silêncio. Mais uma vez o coelho retorna sozinho, impassível, e volta a dedilhar o teclado de seu laptop, como se nada tivesse acontecido...
Dentro da toca do coelho, vê-se uma enorme pilha de ossos ensanguentados e peles de diversas exraposas e, ao lado destas, outra pilha ainda maior de ossos e restos mortais daquilo que um dia foram lobos. Ao centro das duas pilhas de ossos, um enorme leão, satisfeito, bem alimentado e sonolento, a palitar os dentes.
MORAL DA HISTÓRIA:
Não importa quão absurdo é o tema de sua tese.
Não importa se você não tem o mínimo fundamento científico.
Não importa se os seus experimentos nunca chegarem a provar sua teoria.
Não importa nem mesmo se suas ideias vão contra o mais óbvio dos conceitos lógicos.
O que importa é quem é o seu orientador.
Qual a função sintática do termo sublinhado em: “Coelhinho, o que você está fazendo aí tão concentrado?”?
Provas
Questão presente nas seguintes provas
Cadernos
Caderno Container