Foram encontradas 90 questões.
Provas
- ECAEspecialDa Prática de Ato InfracionalDas Medidas Sócio-Educativas (arts. 112 ao 125)
- Sistema Nacional de Atendimento Socioeducativo
Provas

Provas
- Gerenciamento, Planejamento e Controle de Obras
- Orçamento no Planejamento e Controle de Obras na Engenharia Civil

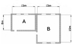
Os custos estão estimados em R$ 20,00/m2 para a mão de obra e R$ 30,00/m2 para os materiais empregados. Quando se considera um BDI (Benefícios e Despesas Indiretas) de 30% sobre o custo direto, o custo total da reforma é de:
Provas
A figura a seguir representa parte do esquema estrutural que será adotado na construção de uma ponte.

Com base apenas neste desenho, é possível afirmar que se trata de:
Provas
- Gerenciamento, Planejamento e Controle de Obras
- Orçamento no Planejamento e Controle de Obras na Engenharia Civil

Considerando que o custo de cada tarefa seja uniformemente distribuído na sua duração, é possível estimar que o maior desembolso mensal:
Provas
- Engenharia de Tráfego
- Geotecnia
- Projeto e Execução de Rodovias e FerroviasTerraplenagem
- Escavações e Contenções

Provas
Provas
Uma edificação de 4.680m², divididos em dois pavimentos e um mezzanino, será construída num lote plano, cujo perfil do subsolo apresenta uma primeira camada de entulho com espessura média de 50cm. Abaixo desta, há uma camada constituída de um solo arenoso, pouco siltoso, compacta, com espessura variando entre 5,80m e 6,10m, e com o nível do lençol freático 60cm abaixo da sua borda superior. A camada subjacente é constituída de argila orgânica cinza escura, muito mole, cuja espessura varia entre 38 e 43m, sobre rocha contínua. Em reunião preliminar, foram propostas e discutidas as diversas possibilidades de soluções para as fundações. Dentre as alternativas a seguir, assinale aquela que deveria ser examinada em primeiro lugar, considerando que o pilar mais carregado suporta cerca de 980kN:
Provas
Provas
Caderno Container