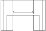
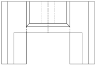
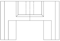
O desenho abaixo apresenta a vista frontal e a vista lateral
esquerda de uma peça.
Marque a alternativa que representa a vista superior desta peça:

Marque a alternativa que representa a vista superior desta peça:
