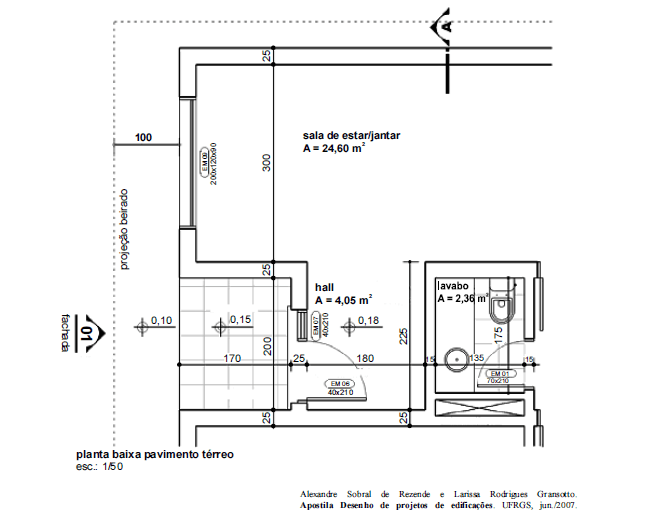
Julgue o item que se segue referente a projeto arquitetônico.
Na planta-baixa reproduzida na figura a seguir, o retângulo cruzado por duas diagonais na área do lavabo indica um espaço livre para um armário de embutir.

Provas
Questão presente nas seguintes provas