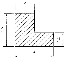
Analise a representação a seguir.

Qual a quantidade mínima de peças de cerâmica 20x20 cm necessárias para pavimentar a área representada acima?
Dado: cotas em metros.
Analise a representação a seguir.

Qual a quantidade mínima de peças de cerâmica 20x20 cm necessárias para pavimentar a área representada acima?
Dado: cotas em metros.