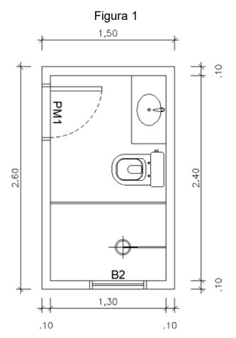
Considere as seguintes informações referentes à planta baixa do banheiro apresentada na Figura 1:
Dados de projeto: PM1 Porta em madeira 0,60x2,10m; B2 Balancim em alumínio e vidro 0,6x0,6m; Pé
direito 2,60m. Para o cálculo, efetue o desconto integral dos vãos, quando necessário.

Com base na leitura da planta baixa do banheiro apresentada na Figura 1, é correto afirmar:

Com base na leitura da planta baixa do banheiro apresentada na Figura 1, é correto afirmar: