Magna Concursos
3275675 Ano: 2024
Disciplina: Arquitetura
Banca: VUNESP
Orgão: APS

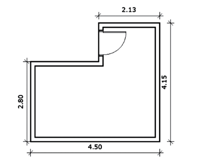
É preciso calcular a quantidade necessária de argamassa colante para assentamento de um piso no ambiente apresentado a seguir.

Enunciado 3686230-1

(Arquivo pessoal; imagem usada com autorização)

Considerando-se a espessura de 15 centímetros das paredes, o rendimento médio da argamassa de 5 kg/m2 (utilizando a desempenadeira com dentes pequenos), vendida em sacos de 20 kg e desprezando-se as perdas, a quantidade de sacos que devem ser comprados é, aproximadamente,

 

Provas

Questão presente nas seguintes provas

Técnico Portuário - Projetista

50 Questões