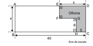
Em um terreno retangular ABCD, com 40 m de comprimento, foi construída uma oficina CDEFGH, com GH = 8 m e HC = 5 m, conforme mostra a figura, onde as medidas indicadas estão em metros.

Sabendo que os lados AB e DE e têm a mesma medida e que a área do terreno ABCD é 600 m2 , o perímetro da oficina é