
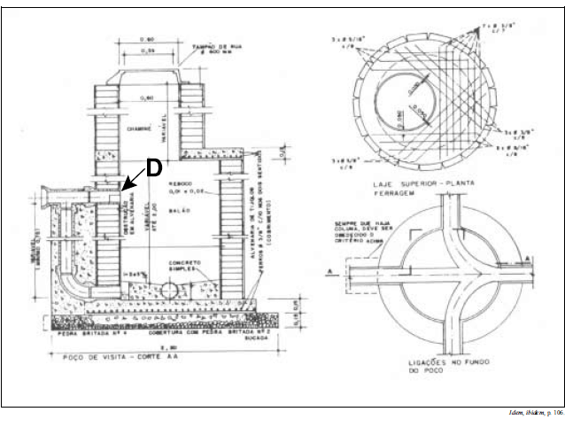
Com base na figura acima — que mostra o detalhamento de um poço de visita em alvenaria, com tubo de queda — julgue os itens a seguir.
A figura é uma perspectiva isométrica.

Com base na figura acima — que mostra o detalhamento de um poço de visita em alvenaria, com tubo de queda — julgue os itens a seguir.
A figura é uma perspectiva isométrica.