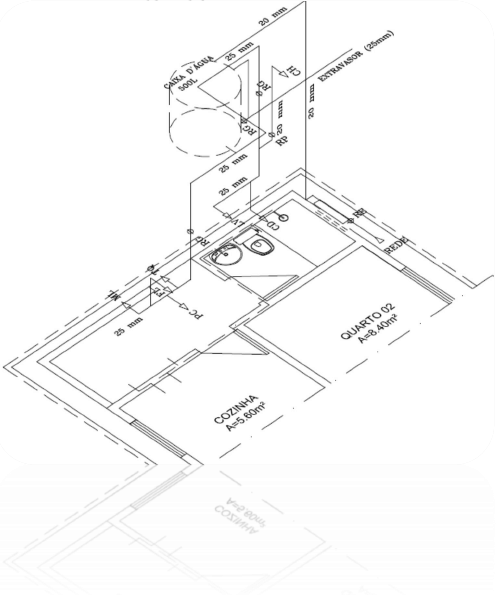
O perfil isométrico do projeto hidráulico detalha as tubulações, conexões e reservatório a serem utilizados no abastecimento residencial, para a correta execução da instalação hidráulica. Baseado na figura abaixo, a tubulação da rede que alimenta a caixa d’água é em mm:
