
Internet: <www.petecv.ufsc.br> (com adaptações).
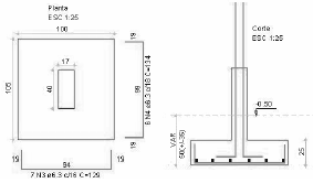
A figura acima mostra, em planta e corte, o projeto da estrutura de fundação de uma construção. Com base na interpretação desse projeto, assinale a opção correta.

Internet: <www.petecv.ufsc.br> (com adaptações).
A figura acima mostra, em planta e corte, o projeto da estrutura de fundação de uma construção. Com base na interpretação desse projeto, assinale a opção correta.