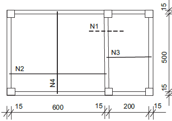
A questão refere-se à planta de armação de lajes abaixo esquematizada.

Entre as armações desenhadas, é(são) positiva(s), apenas:
Provas
Questão presente nas seguintes provas
A questão refere-se à planta de armação de lajes abaixo esquematizada.

Entre as armações desenhadas, é(são) positiva(s), apenas: