Magna Concursos
1693175 Ano: 2006
Disciplina: Arquitetura
Banca: UNAMA
Orgão: Pref. Itaituba-PA
Provas:

NAS QUESTÕES NUMERADAS DE 11 A 25, ASSINALE A ÚNICA ALTERNATIVA QUE RESPONDE CORRETAMENTE AO ENUNCIADO.

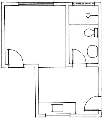
Na planta baixa, é correto identificar as seguintes convenções para desenho arquitetônico:

enunciado 1693175-1

 

Provas

Questão presente nas seguintes provas

Técnico - Desenhista

25 Questões