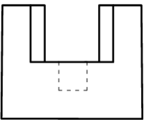
Observe a peça a seguir, representada em perspectiva isométrica:
Figura 2

Fonte: O autor
Sabendo-se que a vista frontal é a indicada pela seta, qual desenho a seguir representa a vista lateral direita dessa peça no primeiro diedro do sistema universal de projeção?