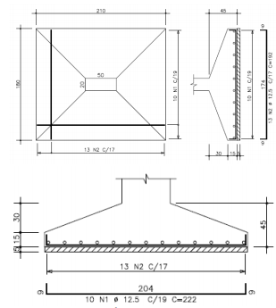
Considerando a massa nominal de 0,963kg/m para o aço DN 12,5mm e o acréscimo de 10% referente as perdas e cortes, o peso total de aço e o volume de concreto da sapata ilustrada a seguir são, respectivamente:

Provas
Questão presente nas seguintes provas