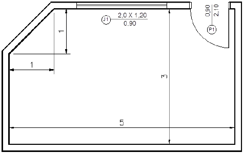
A figura representa uma planta baixa de uma sala. O teto será rebaixado com forro de madeira com peças de 0,10 m de largura útil, colocadas perpendicularmente a maior dimensão. O rodapé será de madeira e executado somente na face interna da parede.

Sem considerar quaisquer perdas ou acréscimos, a quantidade total de forro de madeira, em metros, e a quantidade de rodapé, em metros, que devem ser adquiridos, respectivamente, são: