Magna Concursos
669312 Ano: 2018
Disciplina: Engenharia Civil
Banca: CESPE / CEBRASPE
Orgão: IFF

Enunciado 669312-1

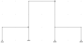
Com relação à estaticidade global, a estrutura mostrada na figura precedente classifica-se como

 

Provas

Questão presente nas seguintes provas

Professor PEBTT - Edificações

50 Questões