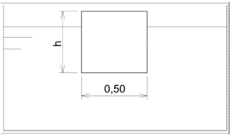
A figura a seguir apresenta um bloco de madeira com base quadrada de lado igual a 0,50m, posicionado em um tanque de água.

(dimensões em metros)
Sabendo-se que a madeira possui densidade igual a 0,75, a altura h que o bloco deve possuir para que flutue, na configuração indicada, em equilíbrio indiferente vale, aproximadamente:
Provas
Questão presente nas seguintes provas
Especialista Legislativo - Engenharia Mecânica
70 Questões