
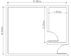
Dados:
- Desconsiderar o vão aberto das portas
- Considerar a espessura das paredes de 15cm
- Considerar altura da alvenaria até a parte inferior da laje
- Pé direto de 3,0 metros
- Não considerar perdas
- Considerar a espessura das paredes de 15cm
- Considerar altura da alvenaria até a parte inferior da laje
- Pé direto de 3,0 metros
- Não considerar perdas
O projeto arquitetônico abaixo mostra dois ambientes com suas dimensões cotadas em metros. Diante da informação, foi solicitado o levantamento dos quantitativos dos serviços de execução de alvenaria e piso cerâmico. Assim teremos os seguintes valores, respectivamente: