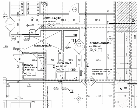
O projeto executivo de uma edificação deve ser baseado no anteprojeto de arquitetura e nos anteprojetos das disciplinas complementares (estruturas, instalações elétricas, sanitárias, etc.). A partir do cruzamento das várias informações, se obtém o projeto executivo compatibilizado. Observe atentamente o fragmento de projeto a seguir:

Assinale a alternativa correta sobre a identificação dos itens I, II e III destacados na planta: