Magna Concursos
3163431 Ano: 2024
Disciplina: Arquitetura
Banca: UFMT
Orgão: Pref. Cáceres-MT
Provas:
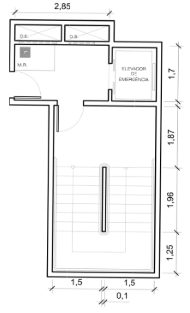
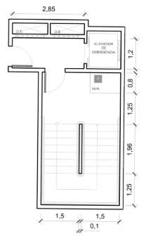
Um edifício comercial de múltiplos pavimentos, classificado pela NBR 9077/2001 “Saídas de emergência em edifícios” como edificação alta de pequeno pavimento, demanda a implantação de uma escada de emergência do tipo Escada enclausurada à prova de fumaça (PF). A NBR 9050/2020 “Acessibilidade a edificações, mobiliário, espaços e equipamentos urbanos” também determina requisitos para a garantia da acessibilidade em rotas de fuga. Qual alternativa ilustra uma solução adequada para a escada de emergência nessa edificação, considerando os registros dessas normas?
 

Provas

Questão presente nas seguintes provas

Arquiteto

40 Questões