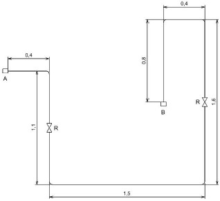
A figura a seguir apresenta a vista em elevação de uma tubulação que liga dois reservatórios A e B. Sabe-se que a tubulação possui 40 mm de diâmetro e que a vazão na tubulação é de 6 L/s.

Obs.: unidades em metros.
Nessa tubulação, há 5 cotovelos de 90 graus, 2 válvulas abertas, além da saída e entrada nos reservatórios A e B. Os valores para o fator para perda de carga localizada são apresentados na tabela a seguir.
| Elemento | Fator K (perda de carga localizada) |
| Cotovelo 90 graus | 0,80 |
| Válvula aberta | 0,20 |
| Entrada / saída reservatório | 1,00 |
Admitindo \( \pi \) = 3 e assumindo a aceleração da gravidade igual a 10 m/s2 e perda de carga ao longo da tubulação de 0,01 m/m, a perda de carga total ao longo da tubulação é de