Magna Concursos
2431855 Ano: 2012
Disciplina: Engenharia Mecânica
Banca: UFSM
Orgão: UFSM
Provas:

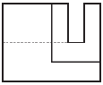
De acordo com a perspectiva representada abaixo, assinale a alternativa com a vista CORRETA.

Enunciado 2812930-1

 

Provas

Questão presente nas seguintes provas

Técnico de Mecânica

40 Questões