- Instalações PrediaisInstalações Hidrossanitárias
- Instalações PrediaisSegurança Contra Incêndio e Pânico
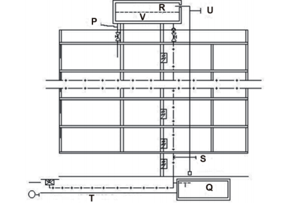
A Figura abaixo, extraída do Código de Segurança Contra Incêndio e Pânico para edificações no Estado do Rio de Janeiro, representa um corte esquemático de uma edificação, mostrando sua canalização preventiva e o abastecimento de água.

Identificam-se P, Q, R, S, T, U e V, respectivamente, como: