

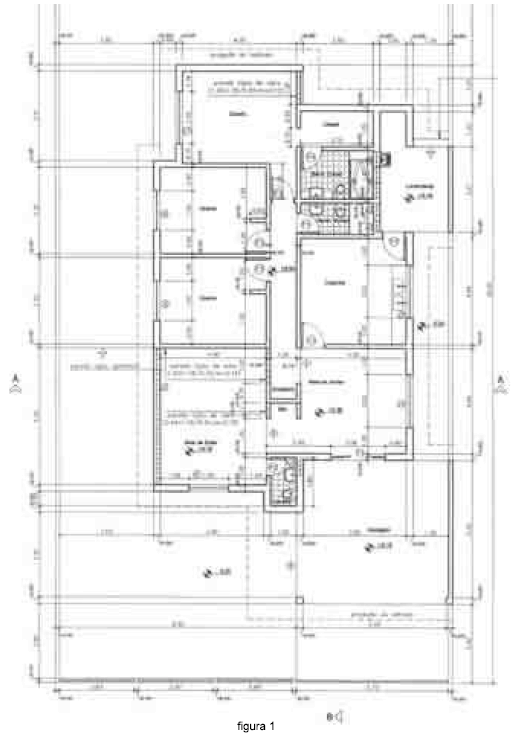
Um projeto arquitetônico contém uma série de desenhos que descrevem sua concepção. Esses desenhos são elaborados com as normas e regras da linguagem do desenho técnico, o que lhes confere precisão e clareza. São desenhos que servem tanto para estudo na fase de projeto, quanto para a construção e para posterior inspeção e verificação da obra construída. A leitura e o entendimento dos desenhos técnicos são essenciais em todas as fases de uma edificação. Tendo em vista os dois desenhos anteriormente mostrados — figuras 1 e 2 —, que fazem parte de um mesmo projeto residencial, julgue os itens a seguir.
Na planta baixa, figura 1, o símbolo
s indica um desnível entre a sala de jantar e o corredor interno. Como a letra "S" significa "sobe", a seta indica o sentido de subida.