Considere a planta de cobertura esquematizada a seguir.

Dentre os cortes esquematizados, o que corresponde ao corte AA indicado é
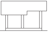
Considere a planta de cobertura esquematizada a seguir.

Dentre os cortes esquematizados, o que corresponde ao corte AA indicado é