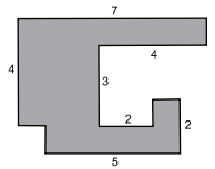
A figura mostra um polígono de 12 lados, com os lados consecutivos formando ângulos retos entre si. As medidas dos lados estão dadas em metros e os 5 lados sem indicação de medida têm 1 metro de comprimento cada.

A área desse polígono, em metros quadrados, é
Provas
Questão presente nas seguintes provas
Oficial Administrativo
50 Questões
Tradutor e Intérprete de Libras
50 Questões