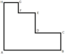
Observe o polígono abaixo:

Considerando que AB = 14 cm, BC = 4 cm, DE = 5 cm, EF = 4 cm, GH = 2 cm e AH = 12 cm, determine a área total do polígono.
Provas
Questão presente nas seguintes provas
Agente Comunitário de Saúde
40 Questões
Auxiliar de Saúde Bucal
40 Questões
Fiscal do Meio Ambiente
40 Questões
Inspetor Tributário
40 Questões
Monitor de Escola
40 Questões
Oficial Administrativo
40 Questões
Técnico de Enfermagem
40 Questões
Técnico de Radiologia
40 Questões
Tesoureiro
40 Questões