Magna Concursos
1779069 Ano: 2007
Disciplina: Serviços Gerais
Banca: CESPE / CEBRASPE
Orgão: Pref. Rio Branco-AC

enunciado 1779069-1

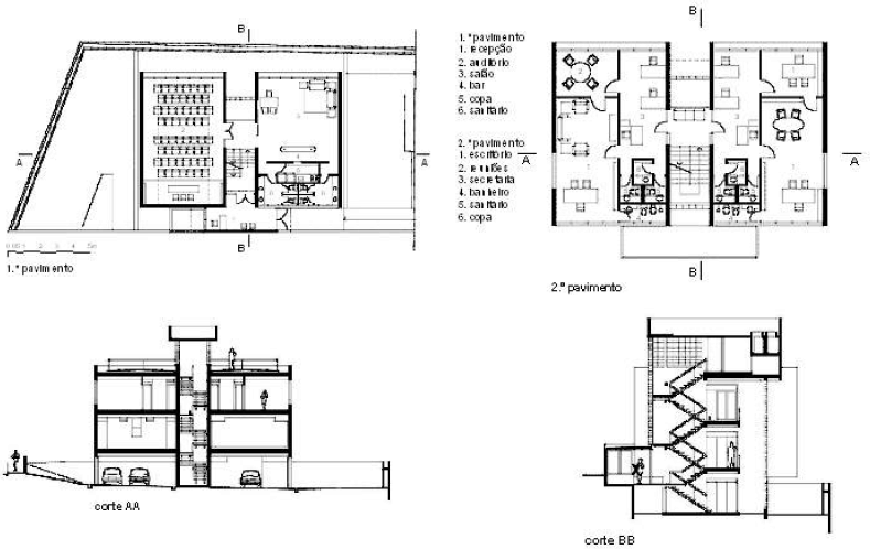
Acerca dos desenhos acima, que correspondem ao projeto do Espaço Pacaembu (1996), de autoria do arquiteto Marcos Acayaba, julgue os itens que se seguem.

O edifício possui 4 pavimentos além da garagem.

 

Provas

Questão presente nas seguintes provas