Magna Concursos
Questões
Planos
Entrar
Entrar
Criar Conta
Respondida
1392601
Ano:
2010
Disciplina:
Engenharia Civil
Banca:
IF-SUL
Orgão:
IF-SUL
Provas:
Técnico em Edificações
Provas
×
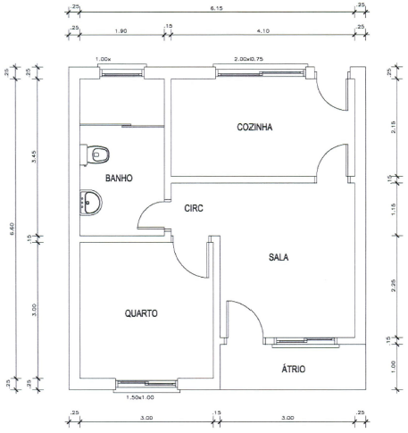
Considerando o beiral com 0,50 m, a altura da cinta de amarração com 30 cm e a espessura de laje com 0,08 m, qual o volume de concreto necessário para executar a cinta de amarração e a laje de cobertura para o projeto apresentado acima?
A
5,55 m
3
.
B
7,38 m
3
.
C
6,20 m
3
.
D
6,73 m
3
.
Resolver
Comentários
0
×
Cadernos
×
Flashcards
×
Estatísticas
×
Reportar um erro
×
Provas
Questão presente nas seguintes provas
Técnico em Edificações
40 Questões
Resolver Prova
Publicar
Responder
Qual o problema da questão?
Selecione uma opção
Questão Desatualizada
Questão Repetida
Gabarito Errado
Outros Motivos
Mensagem
Enviar
Acessar
Criar Conta
Acesse sua Conta
Google
Facebook
Esqueci minha senha
Acessar
Ainda não tem conta?
Crie uma
!
Crie uma Conta
Criar Conta
Olá, para continuar, precisamos criar uma conta!
É
rápido
e
grátis
.
Google
Facebook
Concordo com os
Termos de Uso
Criar
Já tem uma conta?
Acesse aqui