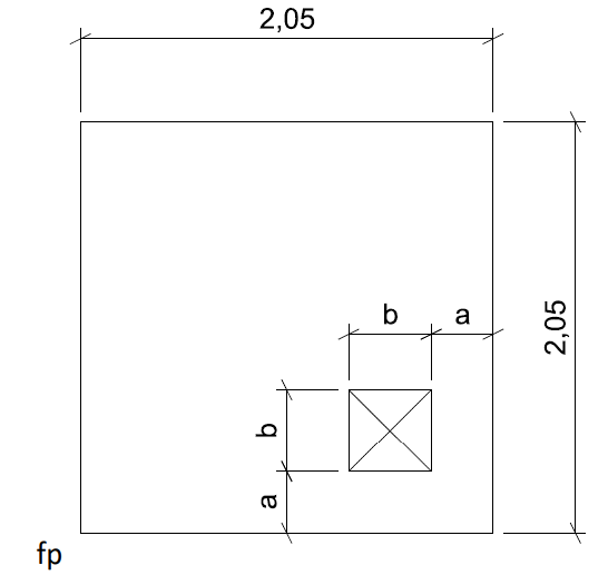
A figura a seguir apresenta uma laje maciça de concreto armado com um rasgo que atravessa sua espessura.

(Dimensões em metros)
De acordo com a NBR 6118:2023, para que haja dispensa de verificação do impacto desse rasgo na resistência e deformação da laje, o menor valor para a dimensão a e o maior valor para a dimensão b, admitindo valores inteiros, são, respectivamente,
Provas
Questão presente nas seguintes provas