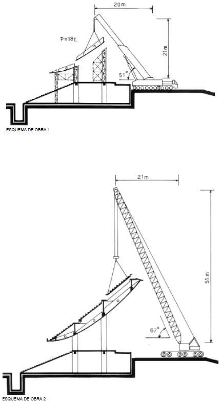
Analise os esquemas de obra e as fotos do projeto do Estádio San Nicola (1987-90) em Bari, Itália, do arquiteto italiano Renzo Piano.


Considerando as características desta obra, é correto afirmar:


Considerando as características desta obra, é correto afirmar: