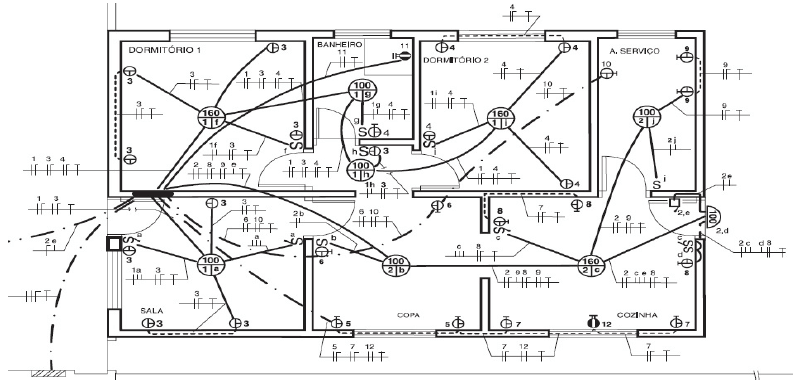
Analisar a figura abaixo e assinalar a alternativa que indica CORRETAMENTE em quantos circuitos terminais foi divida a instalação elétrica da residência projetada.

Analisar a figura abaixo e assinalar a alternativa que indica CORRETAMENTE em quantos circuitos terminais foi divida a instalação elétrica da residência projetada.
