- Instalações ElétricasEquipamentos em Média Tensão
- Instalações ElétricasSubestações
- Proteção de Sistemas ElétricosProteção em Média Tensão
- Sistemas Elétricos de PotênciaDistribuição de Energia Elétrica
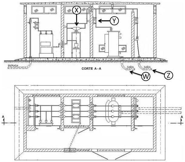
Considere a figura a seguir, a qual representa uma subestação de consumidor/medição com disjuntor, transformador e derivação. São apresentados o corte A-A e a vista superior.

Uma das funções do componente identificado na figura pela letra Y é: