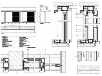
A prancha a seguir corresponde ao projeto detalhado de uma esquadria.

Assinale a opção que descreve as especificações que podem ser verificadas pela observação dos desenhos.
A prancha a seguir corresponde ao projeto detalhado de uma esquadria.

Assinale a opção que descreve as especificações que podem ser verificadas pela observação dos desenhos.