Magna Concursos
479119 Ano: 2013
Disciplina: Engenharia Civil
Banca: FCC
Orgão: TRT-18

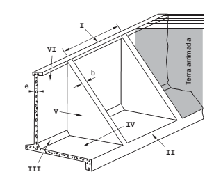
Considere o muro de arrimo da figura a seguir.

Enunciado 479119-1

As peças que compõem o muro são:

 

Provas

Questão presente nas seguintes provas

Analista Judiciário - Engenharia Civil

60 Questões