Magna Concursos
Questões
Planos
Entrar
Entrar
Criar Conta
Respondida
2502530
Ano:
2014
Disciplina:
Arquitetura
Banca:
FCC
Orgão:
TCE-RS
Provas:
Auditor Público Externo - Arquitetura
Provas
×
Instalações Prediais
Ar Condicionado
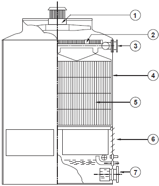
A figura abaixo ilustra os componentes principais de uma torre de resfriamento para instalação de ar condicionado.
Correspondem a entrada de água, motor-ventilador, eliminadores de gotas e saída de água, respectivamente, os números
A
3, 1, 2 e 7.
B
7, 5, 1 e 3.
C
3, 5, 1 e 7.
D
3, 2, 1 e 7.
E
1, 5, 6 e 7.
Resolver
Comentários
0
×
Cadernos
×
Flashcards
×
Estatísticas
×
Reportar um erro
×
Provas
Questão presente nas seguintes provas
Auditor Público Externo - Arquitetura
170 Questões
Resolver Prova
Publicar
Responder
Qual o problema da questão?
Selecione uma opção
Questão Desatualizada
Questão Repetida
Gabarito Errado
Outros Motivos
Mensagem
Enviar
Acessar
Criar Conta
Acesse sua Conta
Google
Facebook
Esqueci minha senha
Acessar
Ainda não tem conta?
Crie uma
!
Crie uma Conta
Criar Conta
Olá, para continuar, precisamos criar uma conta!
É
rápido
e
grátis
.
Google
Facebook
Concordo com os
Termos de Uso
Criar
Já tem uma conta?
Acesse aqui