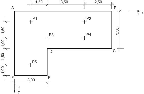
Observe o croqui a seguir, que representa o gabarito ABCDEFA de uma obra. Para marcar no gabarito os centros geométricos das fundações, foram criados os eixos x e y, a partir do ponto A.

Considere os seguintes dados:
- Todos os vértices do gabarito têm ângulo reto;
- As distâncias estão em metros;
- Os pontos P1, P2, P3, P4 e P5 são centros geométricos das fundações a serem marcadas;
- Os eixos x e y estão marcados sobre o gabarito, nos lados AB e AF, respectivamente, formando pares coordenados (x,y) nos centros das fundações, sendo a origem no ponto A, a partir do qual são formados os pontos representados como P(x,y).
Nessas condições, as marcações x e y das fundações P1, P2, P3, P4 e P5 serão:
| P1 | P2 | P3 | P4 | P5 |