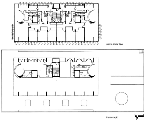
Observe a seguir, os desenhos e as imagens do Edifício Abaeté (1963), em São Paulo, obra do arquiteto Abrahão Sanovicz.




Em relação aos princípios e características dessa arquitetura, constata-se que
Observe a seguir, os desenhos e as imagens do Edifício Abaeté (1963), em São Paulo, obra do arquiteto Abrahão Sanovicz.




Em relação aos princípios e características dessa arquitetura, constata-se que