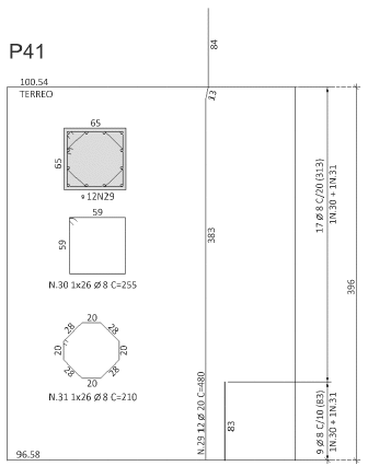
No detalhamento da armadura do lance em destaque do pilar P41, indicado no desenho a seguir:

Para qual função as posições N.30 e N.31 são destinadas?
Provas
Questão presente nas seguintes provas
Engenheiro Civil - Estruturas de Aços e Mistas
80 Questões
Engenheiro Civil - Estruturas de Madeira
80 Questões