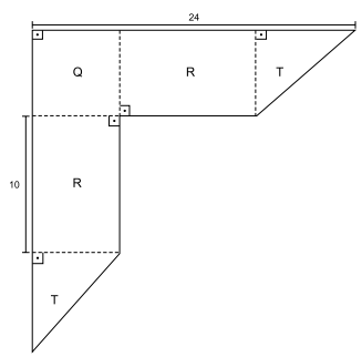
Um pátio escolar é dividido em uma região quadrada (Q), com área de 36 m², duas regiões retangulares congruentes (R) e duas regiões triangulares congruentes (T), conforme mostra a figura, cujas dimensões estão indicadas em metros.

O perímetro desse pátio é, em metros, igual a