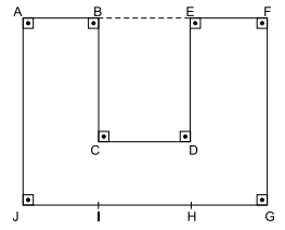
Um terreno é representado, fora de escala, na figura a seguir. Nela, os segmentos AB e EF medem 4 metros; o segmento FG é 5 metros maior do que o segmento CD; o polígono com vértices em CDHI é um quadrado; e a área total do terreno é de 220 m2 .

Para distribuir as obras que fará no terreno, o dono comparou, em termos percentuais, a área da parcela do terreno correspondente ao quadrado CDHI, em relação à área total do terreno. Ele obteve um valor percentual compreendido entre
Provas
Questão presente nas seguintes provas
Administrador
40 Questões
Analista de TI
40 Questões
Assistente Social
40 Questões
Auditor
40 Questões
Bibliotecário Documentalista
40 Questões
Biólogo
40 Questões
Biomédico
40 Questões
Engenheiro Ambiental
40 Questões
Engenheiro Civil
40 Questões
Engenheiro de Segurança do Trabalho
40 Questões
Engenheiro Eletricista
40 Questões
Farmacêutico
40 Questões
Farmacêutico Bioquímico
40 Questões
Físico - Física Médica
40 Questões
Fisioterapeuta
40 Questões
Nutricionista
40 Questões
Odontólogo - Antropologia Forense
40 Questões
Tecnólogo em Eletrônica
40 Questões