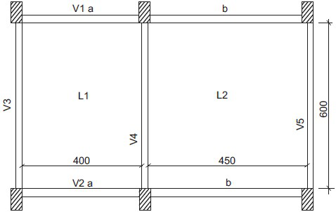
Considere a planta de forma esquematizada e os seguintes dados.

Dados:
- Cotas em centímetros • Distância máxima entre escoras das vigas: 0,80 m
- Distância máxima entre escoras das lajes: 1,00 m
- Considerar que todas as formas das lajes L1 e L2 se apoiam nas formas das vigas
- Considerar que todas as formas das vigas se apoiam nas formas dos pilares
- Seção transversal de todas as vigas: 10 cm x 50 cm
- Espessura das lajes: 10 cm
- Consumo de cimento por metro cúbico de concreto: 400 kg
- Croqui sem escala
Para realizar ajustes no cronograma da obra, foi necessário concretar, com concreto fabricado na obra, todas as vigas até a altura do fundo das lajes. Para tanto, ficou estabelecido que deveria haver uma quantidade de cimento 20% superior à necessária para a concretagem.
Sabendo-se que cada saco de cimento tem 50 kg, o estoque mínimo em sacos de cimento para atender ao estabelecido é de