Magna Concursos
3080637 Ano: 2014
Disciplina: Engenharia Civil
Banca: UFAL
Orgão: UNCISAL

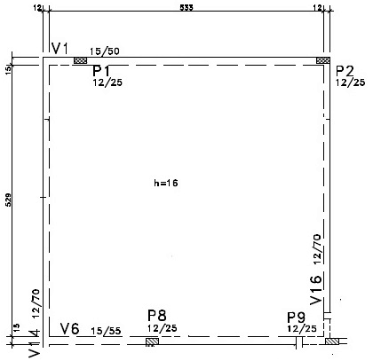
A figura representa parte de uma estrutura em concreto armado, sendo a laje do tipo maciça.

Enunciado 3227726-1

Qual é, em m3, o volume de concreto necessário para o preenchimento da laje?

 

Provas

Questão presente nas seguintes provas