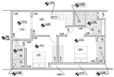
Atenção: Para responder a questão utilize o desenho abaixo.

Verificando as cotas de nível do desenho, é correto afirmar que o ambiente (1)
Provas
Questão presente nas seguintes provas
Técnico de Apoio Especializado - Edificações
60 Questões