Magna Concursos
3096716 Ano: 2012
Disciplina: Engenharia Elétrica
Banca: FUNDEP
Orgão: CEMIG

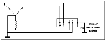
A NBR 5410 refere-se a três sistemas de aterramentos mais utilizados na indústria. Entre eles encontra-se o TN-S.

Nesse caso, assinale a alternativa que melhor representa esse sistema.

 

Provas

Questão presente nas seguintes provas

Técnico - Planejamento do Sistema Elétrico

50 Questões