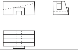
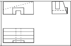
A partir da perspectiva isométrica de uma peça apresentada abaixo, assinale a opção que representa as projeções ortogonais (três vistas) desta peça.

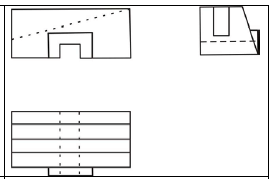
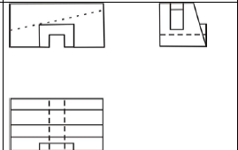
A partir da perspectiva isométrica de uma peça apresentada abaixo, assinale a opção que representa as projeções ortogonais (três vistas) desta peça.
