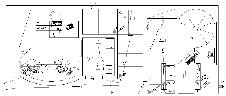
Analise a figura e as afirmativas abaixo e escolha a alternativa correta.

A- A luminária do patamar da escada tem comandos paralelos de acionamento.
B- Existe, pelo projeto, pelo menos uma área inferior onde há instalações elétricas.
C- Pela tubulação que sai da caixinha onde está instalada a luminária do patamar da escada, em direção a uma área de nível inferior, passam 7 cabos.
D- Os circuitos são divididos pela carga dos equipamentos que poderão nele estar ligados e recebem uma codificação para a identificação do mesmo no quadro de disjuntores. O circuito a que pertence a luminária do patamar da escada é o D.
E- As pranchas dos projetos elétricos são normalmente divididas por tipos de circuitos. O trecho do projeto em questão apresenta iluminação e alimentação de computadores.
F- Para a perfeita execução da tubulação embutida, além das informações constantes no trecho de projeto acima, é indispensável que o calculista de elétrica apresente pelo menos dois cortes do prédio: um longitudinal e um transversal.