Observe a figura abaixo, relativa à forma de abastecimento de água nos pontos de utilização de uma edificação.

Este tipo de abastecimento é denominado de distribuição:
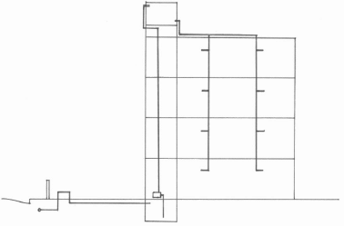
Observe a figura abaixo, relativa à forma de abastecimento de água nos pontos de utilização de uma edificação.

Este tipo de abastecimento é denominado de distribuição: