Magna Concursos
3208211 Ano: 2018
Disciplina: Engenharia Civil
Banca: UFRJ
Orgão: UFRJ
Provas:

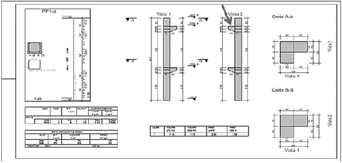
Na representação gráfica do projeto de estrutura apresentada a seguir, a seta aponta para uma peça conhecida como:

Enunciado 3208211-1

 

Provas

Questão presente nas seguintes provas

Técnico de Edificações

60 Questões